1.1目的
首先为什么要做机电深化设计呢,首先是甲方/业主的要求,目的是为了提高效率降低成本,对机电系统的优化给施工带来方便。一句话————省时省力省钱。
1.2依据
与甲方合同中的技术条款及甲方提供的施工图;以及相关国家规范、行业标准、标准图集、相关技术参数。
1.3机电深化设计工作内容及出图种类划分:
机电工程深化设计,主要取决于与业主合同的约定
前期一般包括:
——对原设计图纸提出问题;
——方案及系统的优化;
——系统的核算;
——设备参数的核算;
——平面布置的合理化建议;
——根据甲方要求列出出图计划进度;
——列出需出的图纸目录。
工程开始后,一般情况所出图纸包括以下:
——机电管线预留预埋图;
——机电管线综合平面图;
——机电管线综合剖面图;
——机电各专业深化设计平面图;
——二次墙体综合留洞图;
——设备机房大样图;
——设备机房基础图;
——卫生间大样图;
——综合管井大样图;
——管道支吊架图;
——二次精装末端点位配合平面图;
——三维管道图;
——竣工图
1.4深化设计送审流程

机电深化设计出图流程、内容及要求
2.1工作程序
出图内容:当原图为施工图设计深度时,深化设计工作内容如下:







2.2机电深化设计原则:
2.2.1基本原则
确保实现原始设计意图,实现业主及相关方的需求。深化设计应以原设计为依据,在事先和原设计师充分沟通的基础上进行图纸深化设计,深化设计完成后,报原设计认可后才能进入下道程序。
2.2.2管线布置排列一般原则
(1)决定各管道的最终安装标高的从上到下依次是:排水管、电缆桥架、线槽、暖通管道、通风管道、给水及消防管道。
(2)电缆桥架、线槽尽量高位安装,通风管道中低位安装。
(3)电缆桥架与水专业管道应分开布置或布置在其上方,以免管道渗漏时损坏线缆造成事故,如必须在一起敷设,电缆应考虑设防水保护措施。桥架与水管的平行最小净距400mm,交叉最小净距300mm。
(4)强电桥架与弱电线槽之间留有一定间距,以免互相干扰,有条件时,可分别布置在两侧,两者的间距一般不小于300mm。
(5)遇管线交叉时,应本着“小管让大管、有压让无压,冷水管让热水管,施工简单的避让施工难度大的”原则避让。
(6)管道外壁(或保温层外壁)之间的最小距离按下列规定确定:DN小于等于32mm时,不小于100mm,DN大于32mm时,不小于150mm。并排排列的管道,阀门应错开位置。
(7)各种管线在同一处垂直方向布置时,一般是桥架、线槽在上,水管在下,热水管在上,冷水管在下,风管在上,水管在下。尽可能使管线呈直线,相互平行不交叉,使安装维修方便,降低工程造价。
2.2.3方便施工的原则
充分考虑安装工序及条件,机电设备、管线对安装空间的要求,合理性确定管线的位置和距离。
2.2.4方便系统调试、检测、维修的原则
充分考虑系统调试、检测、维修各方面对空间的要求,合理确定各种机电设备、管线及各种阀门、开关的位置和距离,以及日常维护操作照明、通风。
2.2.5美观的原则
明装机电综合应充分考虑各机电系统安装后外观整齐有序,间距均匀。
2.2.6结构安全的原则
机电管线穿越结构构件,其预留洞口或套管的位置大小应满足设计要求,确保证结构安全,并符合以下原则:
(1)框架柱身、剪力墙暗柱区域严禁开洞。其他部位的结构梁、板、墙上开设洞口或套管原则上应预留。
(2)穿过框架梁、连梁管线宜预埋套管,洞口宜在跨中1/3范围内。
(3)混凝土结构墙、板上预留洞口小于300mm时,钢筋不需截断,绕过洞口即可,当预留洞口大于300mm时,需按设计要求采取必要的结构补强措施。
(4)二次砌筑墙上开设洞口较大时需按设计要求设置过梁。
2.2.7CAD制图原则
(1)建立各专业图层,并设置不同笔宽,各专业字体标注须单独建层,并统一字体。
(2)综合平面图中须以不同的线型或颜色表示各机电系统管线,并明确代号和图例。
(3)综合平面图中风管、电缆桥架以双线表示,根据甲方要求大于DN50以上的水管也可需用双线表示;各种管线距离以中线表示,并注明截面尺寸;各种机电管线均应标注主要位置及高度变化处的标高;剖面图中管线表示外径或轮廓尺寸,并标注净距及标高。
(4)图纸中标注高度时,要统一标准,如使用本楼层装修地面(建筑完成面)的相对高度,其中重力排水、风管、桥架是指管线底标高,其他是指管线中心标高。
2.3.机电深化设计方法
2.3.1首先深化设计人员要深入熟悉各专业图纸,吃透设计理念,详尽了解管线的材质、规格、安装工艺、支吊架形式、注意事项等,并且要能掌握各专业管线的安装规范,对于强制性条文要做到熟记于心,应该保证深化设计出来的图纸符合设计规范和施工规范。
2.3.2在进行管线综合布置前,要将建筑、结构、安装、装修图纸及已订设备的资料收集到一起,布置时要考虑墙、板、梁的厚度,吊顶做法及高度,布置时要经常到现场实地考察,测量,防止出现电管线与土建结构发生冲突。
2.3.3在进行管线综合布置前,首先对准备选用的建筑或装修底图进行处理,删除门等不必要的标注等,对专业图纸中不必要的标注也要删除,以使图纸叠加综合后图面清晰。
2.3.4按照CAD制图原则将机电各个专业深化图进行叠加,一定要做到分专业、分图层,然后进一步调整机电管线相对位置、标高,解决管线交叉问题,标出管线的平面位置、标高、上下返弯情况,合理利用空间,优化设计。对于上下重叠的管道,布置有困难时可以在平面图中错开,以提高图面的可视效果,在剖面图中体现出上下重叠的位置关系。
2.3.5在综合平面图中管线密集处依次编号,并画出相关剖面图,剖面图应表示与结构或与吊顶的尺寸关系;明确各机电系统安装与检修空间尺寸,并注意保证灯具、诱导风机、喷洒头、摄像机等末端设备使用功能以及排水管线路由与坡度等。
2.3.6根据最终确认的机电管线综合平、剖面图,把各专业管线拆分到专业图纸上,形成最终的专业施工图。
2.3.7对于已经做好精装方案的楼层、房间,管线综合时不仅要考虑造型内是否能满足管线安装,还要根据精装图纸中机电末端设备的定位,对末端机电管线进行调整、排布,并将精装的吊顶及墙体检修口,表示在机电综合图上,其检修口的定位尺寸应与精装一致。
2.3.8综合平面图中有坡度的管线,尤其是重力排水管,应标注管线的坡向和坡度,并标注起止位置的标高,要保证重力排水管道不上返弯,且能通过预留洞或套管。
2.3.9机电深化图完成后,要组织各方审核,并经原设计审批才能正式出图。同时在施工前参照机电深化设计图纸,安排好各专业施工的先后顺序,在施工中严格按照机电综合图的定位指导各专业管线施工。当现场施工发现问题或某个专业有新的设计变更时,要及时通知深化设计人员,根据实际情况,发出设计协调记录(工作联系单)作为机电管线综合图纸的必要补充。
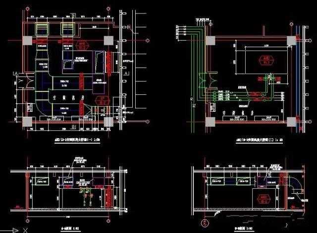
2.4设备机房综合深化图
多数情况下,由于设备设计选型与业主招标的设备外型不一致,原设计中设备的接口尺寸、形式等均可能发生变化,故机房的施工图纸大多需要深化设计,深化时不仅要根据实际订货尺寸绘出设备基础图纸,更要根据实际订货尺寸给出设备连接的平、剖面图,并对各专业图进行综合、调整,在布置时要特别考虑现场维修操作的空间,机房内要做到管线排布成行成列,排列整齐,间隔合理均匀,尽量采用共用支吊架,在满足功能的前提下做到良好的视觉效果和人性化。
2.5管井综合管线深化图
在竖井施工中,水专业管道有与通风专业共用管井,各自所占位置、分支管位置、走向等在各自图上表示,并无一张综合设计图,所以须在图纸上先进行综合考虑,再结合现场实际情况进一步考虑,把一部份图纸设计矛盾及不合理处在施工前加以消除和解决。
2.6.机电深化设计需注意的问题
2.6.1对已有一次结构预留孔洞的管线,应尽量减少位置的移动;与设备连接的管线,应减少位置的水平及标高位移。
2.6.2机电管线安装后,还有后续的穿线、调试等工作,如果有可能,还要了解到以后可能增加的二次施工内容,所以要预留出足够的空间。
2.6.2空调风管、供回水管、冷凝水管、热水管等需保温,深化设计时应考虑保温层厚度,预留合适的保温空间。
2.6.2管线布置时要经常到现场对土建结构进行核对,测量实际结构的净空高度,防止结构偏差影响整体布置。
2.6.3各专业支、吊架尽量采用综合支、吊架,节省材料,布置美观,把支、吊架占用的空间也要反应在深化图纸中。
2.6.4在图纸排布过程中,深化设计人员要经常与各专业技术人员沟通,多去现场看实际情况,各专业的使用功能要严格保证,对于不能满足精装方案的地方,要及时与业主沟通,提供能够达到的最理想排布方案。
2.6.5每个区域,最终出图时,管线位置、规格、标高,机电管线剖面图平面图保持一致。综合协调过程中,剖面图作出调整时,平面图也作出相应调整。
机电深化设计在项目实施中的重要性及角色
1、机电深化对内部各专业的协调,以达到水暖电三个专业的出图一致,设备参数统一,图面整齐划一;
2、对外部的协调包括以下:
1)对甲方/业主:汇报工作流程,图纸送审,技术问题,解决方案;
2)对机电现场总包:进行深化设计协调,深化设计策划,图纸的审核,重点部位管线的安装方案,设备安装方案的确定;
3)对土建现场总包:建筑、结构图纸的咨询,深化设计的支持配合,预留洞图纸的审核;
4)对机电专业分包:机电综合图设计配合,设备参数安装要求;
5)对物资采购供货商:设备选型的审核,设备安装大样图确认,设备信息的沟通,技术方案讨论确定;
6)对装修深化设计:装修图纸的咨询,吊顶末端点位的配合设计,预留检修口;
7)对甲方的商务:确认深化设计细则,履行合同中深化设计要求,提供深化设计图纸,按合同完图后的请款。
深化设计样例
机电综合平面

机电综合剖面图

机电综合留洞图

管道支吊架图

机房大样图

管井大样图
